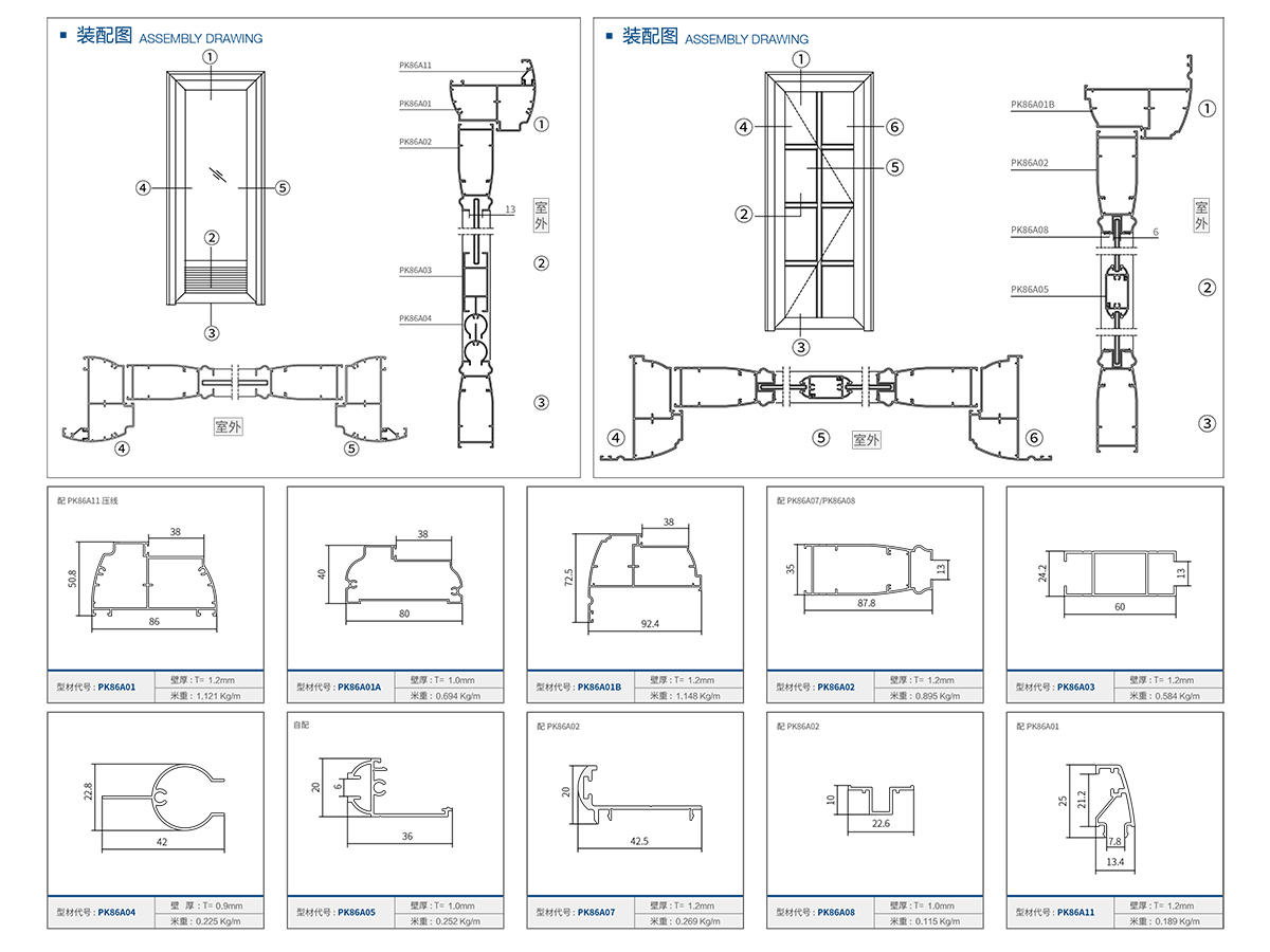
PK86A series vertical hinged door

Product Information

Product classification

decorative material

Product Detail

鳳鋁裝飾材印刷-13_03.jpg 1498223295543659.jpg