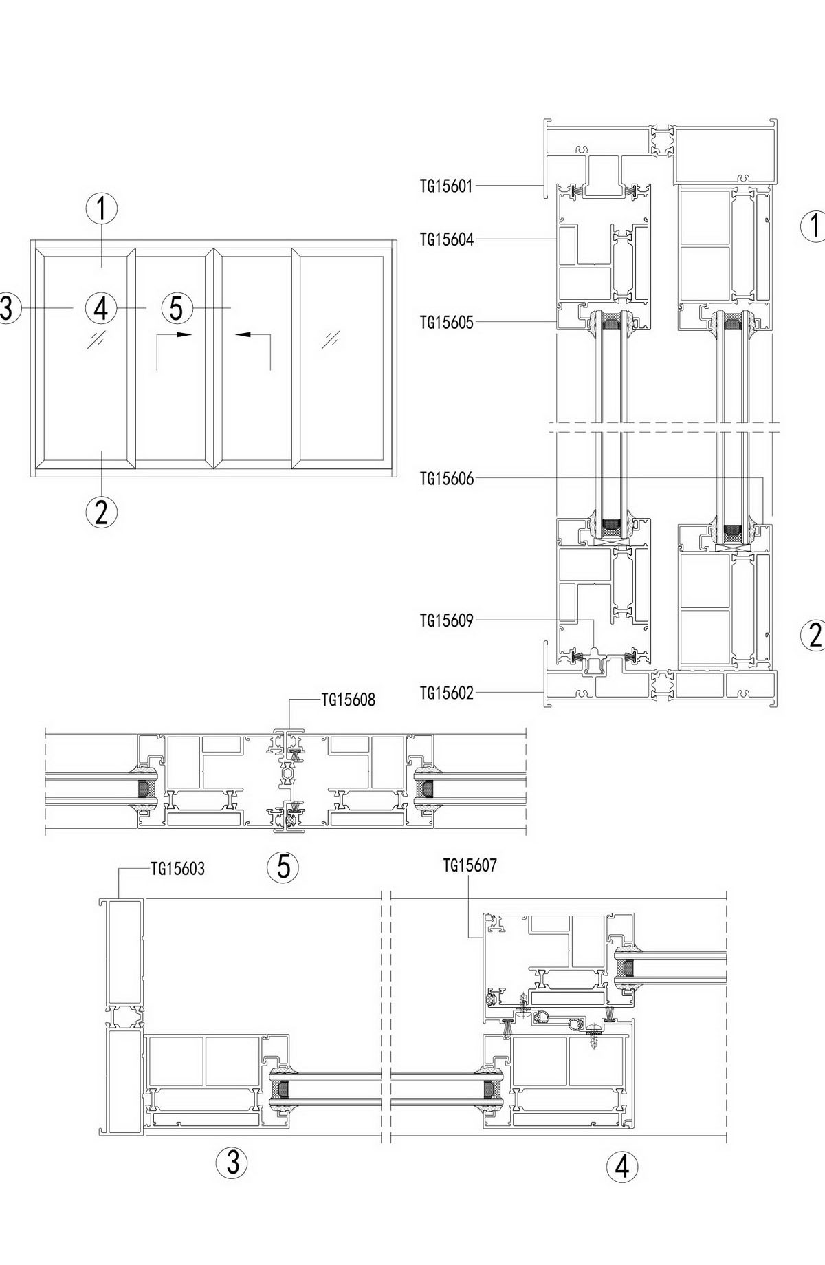
• TG156 heat-insulated lift sliding door

TG156 heat-insulated lift sliding door

Product Detail

  • TG156 heat-insulated lift sliding door