• G85C heat-insulated screen integrated casement window series

G85C heat-insulated screen integrated casement window series

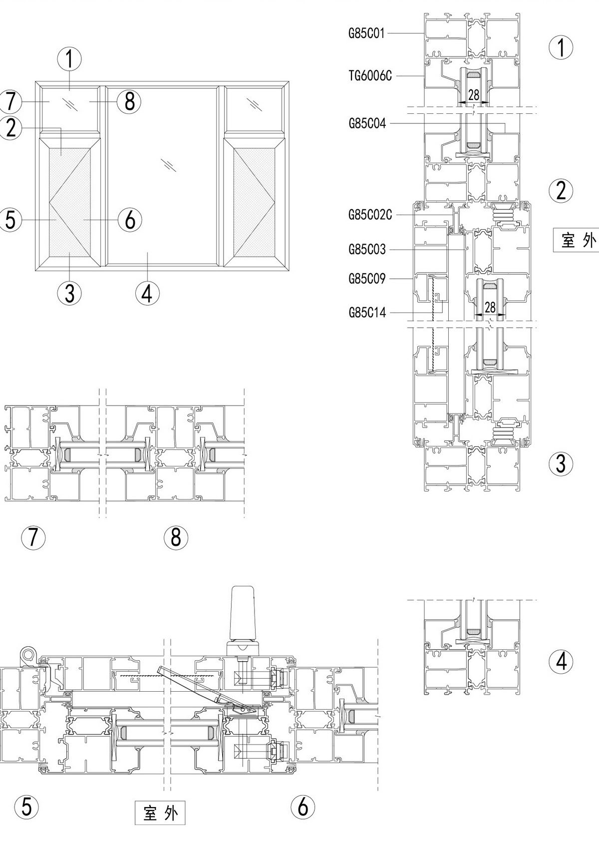
Product Detail

  • G85C heat-insulated screen integrated casement window series